РАМА


ООО "Трейдтрансгрупп" предлагает запчасти для спецтехники, для гусеничного тяжелого транспортера-тягача ГТ-Т и гусеничного снегоболотоходного сидельного тягача ГТ-ТС
| Позиция на рисунке | Артикул | Наименование | Цена | |
|---|---|---|---|---|
| - | 5.40.446 | Палец ручки | дог. | |
| - | 21.40.001 | Рама в сборе | дог. | |
| 1039 | 21C.40.084 | Шнток грязевый левый в сборе | дог. | |
| 1038 | 21С.40.068 | Люк кормы в сборе | дог. | |
| 1037 | 21С.40.067 | Рукоятка в сборе | дог. | |
| 1036 | 21C.40.066 | Крышка панели в сборе | дог. | |
| 1035 | 21С.40.065 | Панель рамы съемная в сборе | дог. | |
| 1034 | 21C.40.057 | Пол кабины левый | дог. | |
| - | 21C.40.001 | Рама в сборе | дог. | |
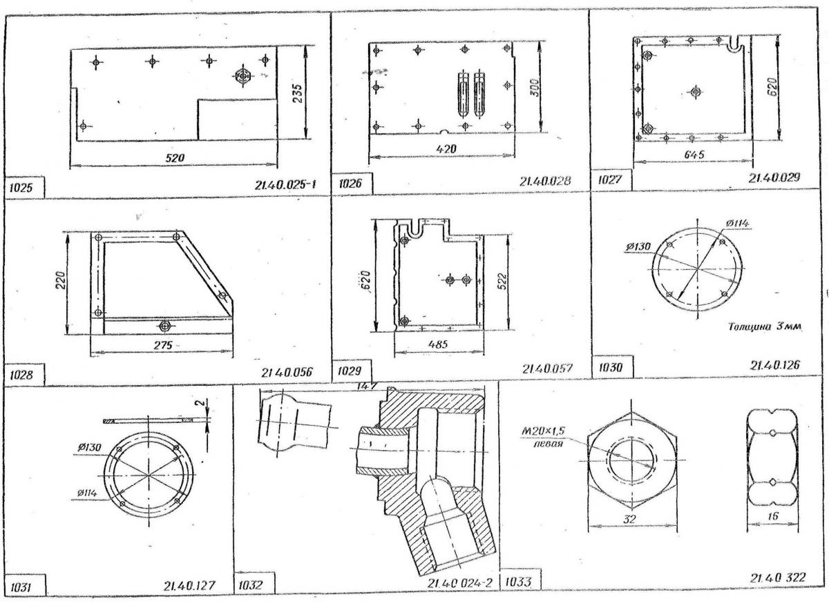
| 1033 | 21.40.322 | Гайка | дог. | |
| 1032 | 21.40.024 2 | Трубка спускная в сборе | дог. | |
| 1031 | 21.40.127 | Прокладка лючка | дог. | |
| 1030 | 21.40.126 | Крышка лючка | дог. | |
| 1029 | 21.40.057 | Пол кабины левый средний в сборе | дог. | |
| 1028 | 21.40.056 | Пол кабины передний малый в сборе | дог. | |
| 1027 | 21.40.029 | Пол кабины задний левый в сборе | дог. | |
| 1026 | 21.40.028 | Пол кабины передний левый в сборе | дог. | |
| 1025 | 21.40.025-1 | Лист пола кабины правый задний в сборе | дог. | |
| 1040 | 21C.40.085 | Щиток грязевый правый в сборе | дог. | |
| 1041 | 21C.40.091 | Крышка в сборе | дог. | |
| - | 21C.40.350 | Панель рамы съемная | дог. | |
| 1042 | 21C.40.405 | Прокладка | дог. | |
| - | 21C.40.414 | Прокладка | дог. |
